

|
item |
Design and manufacture |
Face to face |
Flange standard |
Inspection and test |
|
standard |
API600 JB/T7749 |
ANSI B16.10 |
ANSI B16.5 |
API 598 |
|
Spare parts |
Body ,bonnet |
Disc. seat. stem |
Packing |
yoke |
|
Materials |
A352-LCB |
A182-F304 |
PTFE |
A182-WCB |
|
type |
Nominal pressure |
Normal temperature test pressure (MPa) |
Low temperature test pressure(MPa) |
Service temperature and medium | ||||
|
Shell |
Sealing(gas) |
Back sealing | ||||||
|
DZ40Y-150Lb |
150 |
3.0 |
0.6 |
2.2 |
0.6 |
-46¡æliquid ammonia?ammonia ¡¢propane |
-101?ethylene?CO2 |
-196?methane¡¢liquefied natural gas |
|
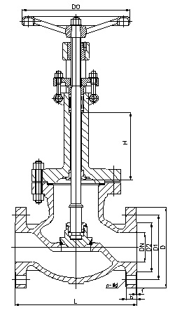
DN |
NPS |
Size | ||||||||||
|
mm |
in |
L |
D |
D1 |
D2 |
b |
f |
n-¦µd |
D0 |
H | ||
|
-46?/DIV> |
-101?/DIV> |
-196?/DIV> | ||||||||||
|
DZ40Y-150Lb | ||||||||||||
|
50 |
2 |
178 |
152 |
120.5 |
92 |
16 |
1.6 |
4-19 |
200 |
110 |
130 |
170 |
|
80 |
3 |
203 |
192 |
152.5 |
127 |
19 |
1.6 |
4-19 |
250 |
120 |
150 |
190 |
|
100 |
4 |
229 |
229 |
190.5 |
157 |
24 |
1.6 |
8-19 |
250 |
130 |
160 |
200 |
|
125 |
5 |
254 |
254 |
216 |
186 |
24 |
1.6 |
8-22 |
300 |
140 |
170 |
220 |
|
150 |
6 |
267 |
279 |
241.5 |
216 |
26 |
1.6 |
8-22 |
300 |
140 |
170 |
220 |
|
200 |
8 |
292 |
342 |
298.5 |
270 |
29 |
1.6 |
8-22 |
350 |
140 |
170 |
220 |
|
DZ40Y-300Lb | ||||||||||||
|
50 |
2 |
216 |
165 |
127 |
92 |
23 |
1.6 |
8-19 |
200 |
110 |
130 |
170 |
|
80 |
3 |
283 |
210 |
168.5 |
127 |
29 |
1.6 |
8-22 |
250 |
120 |
150 |
190 |
|
100 |
4 |
305 |
254 |
200 |
157 |
32 |
1.6 |
8-22 |
300 |
130 |
160 |
200 |
|
125 |
5 |
381 |
279 |
235 |
186 |
35 |
1.6 |
8-22 |
350 |
140 |
170 |
220 |
|
150 |
6 |
403 |
318 |
270 |
216 |
37 |
1.6 |
12-22 |
350 |
140 |
170 |
220 |
|
200 |
8 |
419 |
381 |
330 |
270 |
42 |
1.6 |
12-25 |
400 |
140 |
170 |
220 |
|
DZ40Y-600Lb | ||||||||||||
|
50 |
2 |
292 |
165 |
127 |
92 |
33 |
6.4 |
8-19 |
250 |
110 |
130 |
170 |
|
80 |
3 |
356 |
210 |
168 |
127 |
36 |
6.4 |
8-22 |
250 |
120 |
150 |
190 |
|
100 |
4 |
432 |
273 |
216 |
157 |
45 |
6.4 |
8-25 |
350 |
130 |
160 |
200 |
|
125 |
5 |
508 |
330 |
266.5 |
186 |
52 |
6.4 |
8-29 |
400 |
140 |
170 |
220 |
|
150 |
6 |
559 |
356 |
292 |
216 |
55 |
6.4 |
12-29 |
450 |
140 |
170 |
220 |
|
200 |
8 |
660 |
419 |
349 |
270 |
63 |
6.4 |
12-32 |
500 |
140 |
170 |
220 |